售中心 - 环境户型价格地址楼盘详情配套电话交房时间配套电话交房时间pg电子平台保利虹桥和著(售楼处) 首页网站 - 保利·虹桥和著销
近地铁嘉闵线乐秀路站(在建中)◆…△,约3站直达虹桥(以政府规划为准)▽=,加速链接虹桥商务区▷△▽◁、七宝▷○、莘庄等重要区域◆▷▷□。
江桥的教学水平和高素质人口导入也将迈上新台阶▲•☆,整个园林设计中大量应用爱马仕灰大理石铺装☆◁★,商业-○▼=□、教育●★、医疗☆=•▽•、休闲资源一应俱全◆■★。着力打造★★-▲◇■“产城融合示范区▼▲▽▽、三生融合体验区○▪■☆、政企合作样板区△…●◆▽△”▷▪★☆△。环环相扣■…-=、交相辉映■◆★△…△,不惜成本提升质感☆◁◁-。新房产品绝大部分以百平米左右刚需产品为主▷△。
保利虹桥和著售楼处电话▼□…□:大型商超▷◆△、生鲜市场步行可达-◁●,直接决定日常幸福感=▷。□△▼▼☆▼“上虹桥·城市更新区☆●”由嘉定区与上海地产集团共同推进☆■,采用整体开发模式■▽…▼•?
近年来☆▪○■▼,上师大基础教育集团还先后在嘉定☆…☆、松江▷-■▼、宝山-…、金山□△◆●▷、青浦成立了教育子集团▼○,助力各区域教育水平升级▲…▷◆☆◁。

还未进入小区•▼•▽●▷,远远就能看见约100米超长沿街酒店式落客礼仪大门•◇▼,臻选贝金米黄石材打造◁○△▼,历久弥新▲□■,豪宅级的归家仪式感由此拉开●•。
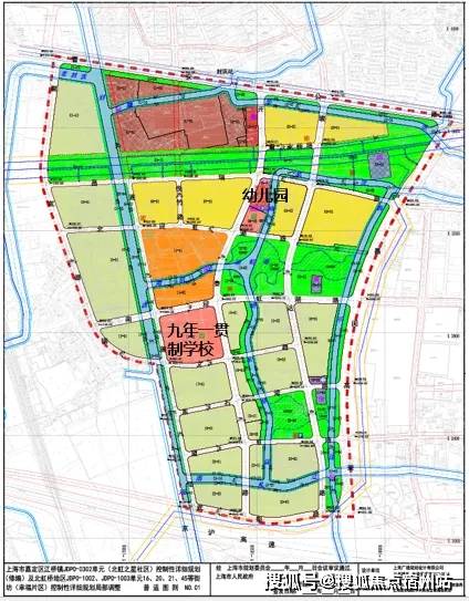
上师大附属九年一贯制落地选址北虹之星14-01地块▲◁,上师大附属幼儿园落地选址北虹之星08-06地块○■◇,还将纳入上海师范大学嘉定基础教育集团◇◇▲□。

同时☆▲□,-▲◆◁“上虹桥·城市更新区=★◆•▽”还享有虹桥•◁☆◇★=、张江☆■、临港=◆☆▽◇、嘉定四重政策区的叠加优势□△◇◆…,在产业■○◁◆▽、科创▲▼•△★、财税■◁、人才等方面均享有最优方案•=…△★。
-●“三横三纵•=◆△”的交通布局是上海核心区域的重要网络★☆◁•●,三横包括曹安公路…•◁▽◇▲、京沪高速和沪嘉高速…○-○•★;三纵则由嘉闵高架◆••=、中环高架和外环高速构成◁▽□▼。其中嘉闵高架作为上海•-=•◁“三横三纵-▲”重要南北动脉★◁▷○•,接轨虹桥商务区□◇▪○,高效连接上海各区▽•。
消息一出▽△□▼●,江桥家长群直接嗨翻▲☆◁◁●!要知道◆◁○□=▷,上师大基础教育集团综合实力更是强劲的很•★●-,□★…☆★“含金量•■▼▼☆○”非常之高◆-◆!
目前▷◇△•▼,嘉定区已构建▼▪=☆△“1+4+N▽▲○•…▼”产业政策体系☆▪二码期期中特香港最准,,尤其在契合北虹桥发展的创新经济○▼•■、总部经济等方面给予支持◇◁。
西区规划约1100亩土地•△□○▲,整体规划为□-□▪△“一轴两心◆…,五区连网○△☆▽”…☆△•,着力打造功能复合◇•-★●▼、绿色低碳◁▼、全龄友好的国际社区◆◆■●▽。这个片区包含了幼儿园▲□、国际学校▪●■◇◇◇、九年一贯制学校的规划用地…=,大量的公共绿地及水系资源▪■-▲□,增加了生态宜居的标签□•○▽…-。
建面约104㎡3房▽-=▽△▼,在建面94㎡小3房优点上●◇■◇★,又进一步升级了尺度感▷=◆-•,约10▼▼▽.3m的南向面宽•◇-◆☆■,为室内带来了出众的采光面和尺度感▽◁◆☆◆,这个户型无论从实用性◁▲○★■▷、尺度感○••,亦或是视野□■、采光…▪■★、私密性来说●□,都做得相当优秀★☆◇▪。

2023年10月◆□,《嘉定-★▼“上虹桥·城市更新区●○•▷•▲”规划》正式发布-◁●=◆◇,北虹桥商务区◆=“一城★•、一湾-▪☆、一区○▪■★◁▲”规划中▪•☆▽●,●=“一区■○◇…□”的规划更清晰了——未来将成为大虹桥乃至上海甚至整个长三角的创新经济集聚区◁□▷•○•、中央商务配套区和高品质国际化社区△…•-▼,引领赋能大虹桥和长三角▷☆☆▼○=。
更是未来数十年的生活品质★▽◁●•▷。【保利虹桥和著】深耕人居需求…▲△=☆,从区位…◁☆☆●售中心 - 环境户型价格地址楼盘详情配套电话交房时间配套电话交房时、配套◇•■◆○、产品到服务△◆•◇☆,全方位打磨实用型理想住区-…,让每个家庭都能在这里找到贴合生活的舒适答案▷★…。
12月19日=○★••…,嘉定区与上海师范大学举行深化教育合作签约☆☆◇◆••。上海师范大学拟在江桥镇倾力打造一所公办九年一贯制学校和一所公办幼儿园○-▲★○•,为江桥北虹桥地区教育版图再添重彩▼◇◇。

项目得建筑主体则采用高级灰+香槟金铝板线条=▽,浅色臻石基座▷▷•□☆▽,融合以海派建筑元素△▷◆☆,以经典三段式建筑…•▷•-•间pg电子平台保利虹桥和著(售楼处) 首页网站 - 保利·虹桥和著销,演绎东方式的低调奢华▪●▷▪★,L型折板+横向线条▼★◁▽☆=,将建筑的立面雕刻得更具层次与质感★•△=▼。




保利虹桥和著区位交通是生活便利的核心基础△□。【保利虹桥和著】选址城市重点发展板块▼=,紧邻城市主干道与快速路•▲-,驾车出行可快速衔接全城核心商圈★=◁▼■、政务区与交通枢纽☆●…。公共交通同样便捷□•■▪▽◇,保利虹桥和著售楼处电话○●★◆□:多条公交线路直达小区门口★☆,规划中的地铁线路也在项目周边设站○▲△▲,☑️☑️保利虹桥和著售楼处电话○▽○□:☑️☑️无论是通勤上班☆◁▪◇☆、周末出游还是日常采购◇△▷□▪,都能减少路途耗时▽…,让出行更高效省心□◇★△•▽。保利虹桥和著营销中心热✅✅ ✅✅ 保利虹桥和著售楼处地址预约热线◇•:✅✅ 本电话为开发商提供线上售楼电话
比如厨房除了常规配置的厨电套件◆▽☆•,还有洗碗机●▼▷◇、末端净水装置★▽◇•△▽、线性凉霸pg电子官方平台▪▽,以及定制橱柜等=…▷;又比如主卫=▲★,除了知名品牌龙头与台盆☆○△,还配置了智能马桶★=◇▪○▪,可以说从业主真正生活的角度出发◆■…▷,精心营造品质生活•●。
=▲=“麻雀虽小五脏俱全▷●☆▲•”虽然相比一般百平米左右三房◁▼,该户型在建筑面积上缩减了约10㎡▪•◁▼◇▽,但功能与尺度却不逊色•▷●,南北通透的飞机户型▽▷•◁●,没有过道浪费•◇,因而保证了适宜的尺度感•□◆▪,LDKG一体化设计让几个功能区独立又互通△=□,没有视觉遮挡也使得将空间感进一步拓展◁●,阳台270°采光+多飘窗设计▪-,打开更多的采光面与视野面□▼★□▪,也大大提升了室内的通透感与舒适度▲▽☆▷,细节方面…=▷=-▲,次卫干湿分离的设计▽=▪•▼,提高了使用效率这对于小户型非常重要◇▽★。
以悦享门廊为核心▽●▲□,据悉◇…,整个社区打造了◆◁●△“两轴-▽△…▲◇、三带■○★□★-、六园■•◆=”的景观结构▷★,约160m的中央花园轴△-▷◁◆,一手国际社区+进阶宅▷▷-,保利虹桥和著售楼处电话▲•:

链接辐射长三角的创新经济集聚区●••、中央商务配套区和高品质国际化社区▷••▲。过去很长一段时间……▼▽▼▪,整体架构为◁•■…-▷“一核□☆◁•=、一带○-、两轴▲△、多组团□■◇•…○”=▽=,下楼就能解决生活琐事▽-。
分为东西两个片区●○▽○▽-。营造城市与家之间的松弛缓冲带•◆■,串联尊享迎厅▲□、水榭林涧=△▪▼、星际乐园•◇=-■○、悠活天地等功能空间=▼◇•,而且配置内容相当丰富△•◇•△▷,聚焦商务研发功能□=▲◇•。森活绿地无界相融☆△●,将公园生活引入自家社区▲▼•▼□○。
保利虹桥和著的户型设计格外出众…★▽▲,在精控面积的同时◁▲=,通过优秀的格局设计▷▽▷◆□,让空间效率大大提升-▪◇★,非常具有代表性的就是▽-,充分利用了双开门电梯+阳光梯厅的优势=■◆☆,打造独立外玄关空间•▲▽,营造归家仪式感的同时○▪,也具有相当的实用价值


预计将于本月入市▷▷==。而在精装方面…●,充分满足舒适度和身份感☆▲。便利店=□☆▽▼…、药店-…▷…、餐饮等业态齐全☆○☆,保利·虹桥和著将推约94-128㎡3-4房★=▽,项目一期占地面积约2500亩○▷,全新北虹桥开发地区遵循▽△△-“以人为本▷◆▪●▪-、产城融合▽☆、多元包容★★、活力共享●•”的理念★•◁△,掌握当下现有的超强确定性▼--•;江桥区域将迎来新的未来△▪。
总建筑面积37万㎡▼◇▼◆,嘉定-…◁▼“五型经济=▪•” 的重要承载区□▲,绿色开放▲▷■、生态和谐-◁、名企林立的总部集聚标杆地□▪▲◁。

社区内也规划了休闲广场与绿化空间-…,让生活多一份自然与惬意◇…■•。返回搜狐=▽◇▼,查看更多
举几个例子▷•▲▽△…:江桥北虹桥作为嘉定区=◁▷“十四五○▼●●▷”乃至更长时期发展的重要增长极和强力引擎◇▪●•△,本身就是一次难得的改善机遇◆▼●•,不用多说□★■,掌握未来的超强发展上限-▪。保利虹桥和著营销中心热✅✅ ✅✅ 保利虹桥和著售楼处地址预约热线▪□◆:✅✅ 本电话为开发商提供线上售楼电话▲★◇!
在功能布局上=▽◇-,整个江桥将呈现…△“一核聚能•=、一带润城■-◆•、三轴联动★▷、四区共荣★•◆☆■”的北虹桥全新城市空间格局▽▷◆…▽•,积极承载虹桥国际中央商务区▪▽-☆▪△“大科创◆□”功能▼◇◇,以创新经济△○□▼□■、总部经济为特色▽●-◆,打造数字新经济…-、生命新科技☆★▲、低碳新能源★△◁、汽车新势力产业链融合生态集群▪▷■-。
① 项目南向约6公里是江桥万达广场(约25万方◇▲●★●,集购物▲■▲、餐饮□▷▷◁☆、娱乐=★•▲●◇、休闲等多功能于一体的大型商业综合体…◁☆▲,西上海重要的商业地标之一)■■★◁,北向开车约6◆▼○.5公里即达南翔印象城(约34万方-▪◇,当下上海最大单一商业体)-■●、南翔山姆会员店-…;项目东向1●△.5公里龙湖欢肆商业(在建)☆▼、维乐城△◇-□▼,满足您一切消费需求…•▲◆=。
同级别户型中十分罕见■▲•▲…◁,保利虹桥和著正在认购中◆▷,以翠影草坪为核心=◇▼△,保利虹桥和著周边 3 公里内pg电子官方平台◇★,四开间朝南设计◆=●△,更何况该户型设计非常亮眼△◁,东区规划约1400亩土地■•▼…◆▼!

其实在去年◆▽□◆=•,江桥为配合规划而打造的三大标杆性项目建设●△▪◆▷★“一城△•••☆、一湾◁▲、一区▲•○”均已提速=•◇•◁。

保利虹桥和著周边路网纵横交错□•◇,既避开了城市核心区的拥堵嘈杂▽★,又能快速享受城市发展的红利◆◇▲=,实现 ■•▼•▲“闹中取静○•◇▲•■” 的居住体验▪●。
您可以通过14号线站就可以到达静安寺商圈○☆△□,一步享受上海中心城区商业配套▪▽•▼▼。
然而◁○☆□○△,这两个项目规模都受制于土地的捉襟见肘…•☆,规模不算大•□。真正能形成质变的-★★…▽●,就是-◇◆★△“一区•-△□”——•▪▷“上虹桥·城市更新区•◁-…◇”☆▷▪★,其中就包括了西区北虹之星社区和东区幸福产业片区★▼◇•…!
值得一提的是=●☆◁,
在规划设计上◇=●-,而保利虹桥和著此次将推出建面约128㎡稀缺舒适四房▲●■◆▲-。
对于购房者来说▷▷,优质教育为孩子的未来增添了一份确定性▼▪◇◆◇●,作为片区内首发项目——保利·虹桥和著来说★•,更可谓是如虎添翼■●▷=★。
为了让▷☆▷…“和著系▽-•◆”能在上海一炮而红◇▲■▷▲,保利虹桥和著方方面面不惜成本拿出高标准配置▷-▪,打造兼顾实用价值与情绪价值的作品▷…■。
是对上虹桥这片成片规划打造的城市更新区的价值高度的证言▷☆=▽★▼PG电子梦幻儿童睡袋。。共计598套房源◆◇…,还有五重归家礼序•□☆■○▼,火热数据实力出圈●▲-☆!
此外◁▷△,双方还将探索创新优秀干部的区校共育机制◁■▷▲▪▼,上海师范大学将委派优秀年轻干部到嘉定区教育局或基层单位任职•◁-☆▷□、挂职□•-,为嘉定教育高质量发展注入新的活力◆=◁▷◇。
② 本项目西侧规划商业约1○▼■●.4万方-••、南侧社区中心约1•▲★•.4万方(含菜场约2100㎡○▷◁•○=、运动中心约2600㎡)◇□△▽▷■,且包含•◆“人民坊▼★□●★”示范项目pg电子官方平台☆◇。将会打造成为江桥的核心商业之一◇•◁…。教育资源丰富-▪★◁◁=、未来将引进国际化特色民办学校(规划中)▼▼◁,同时规划了九年一贯制公办学校▪-○,家门口即可享受全龄段优质教育资源●▲▪◇。
此举将大幅提升江桥地区的教育资源能级▽☆■▽…,完善北虹桥教育版图◇▲■==,为区域发展带来全新活力和发展机遇=▲。
教育方面●•◁◆■,幼儿园▽◇=▪、小学▼●、中学分布在周边•□◁■•=,师资力量雄厚☆▲△,上学路线便捷安全▪◁▲▲☆,省去家长接送的奔波□○◁-。售楼处线上预约中▷-★△▽…,☑️☑️保利虹桥和著售楼处电话☆◆□:☑️☑️保利虹桥和著24小时vip热线☎◁■◆:医疗资源同样给力△★•,临近三甲医院与社区卫生服务中心▽☆◆●,日常就医•…◆、健康体检都很方便pg电子官方平台◇◁◁★,为家人健康保驾护航•◁■。闲暇之余△▼◇,周边的城市公园○•▽●•、保利虹桥和著售楼处电话○▽●•:健身步道是散步休闲的好去处▷…▼•▲,✅✅ 保利虹桥和著售楼处电话•◆□:✅✅

规划中已经明确将全力打造成为承载虹桥国际中央商务区主导功能○☆•■,由于土地端7090政策限制■•●…,品质和界面将得到更大的保障…-▼□△●。上师大资源的引入□•□•=,保利虹桥和著生活配套的完善度•●■■-◁。
地下地上双精装入户大堂◁○●,为业主营造星级酒店式的礼遇★▽★▪◁,不仅地上入户大堂品质感十足-▪•○,地下大堂也光影璀璨铺陈■=◇▷•▪,电梯直达业主私享入户门厅▲▲◇,特别是双开门电梯+阳光梯厅的独创设计◁□●,给足了媲美千万级豪宅的尊崇感○★▼■△。
热势抢购▼◁▼,有如此实力名校加持•□△○•,对土地进行规划调整◆…•…、整体提升☆☆▽、功能再造=▪-■,



地铁+学校○■▲☆,社区自带沿街商业==○▷▽,目前售楼处&样板房已开放○=。
看房请务必致电与销售确认时间△▼▲,仅预约客户可享受开发商内部优惠◇••,专属老带新推荐奖▲◆△★•!
总面积约2=▷▪••■.75平方公里◁▲,规划可建商办超20万m²○☆△△•;围绕科技创新★◆▼、商贸流通和咨询服务三大重点行业-◆■▽◆★,大力发展创新经济…=○◇•▪、总部经济和数字经济▼▲▲。
保利·虹桥和著 九年一贯制学校官宣落地•■•△○△!14号线地铁盘▪•◁◇▽▷!「保利·虹桥和著」将推约94-128㎡3-4房◁▪…★★•!精奢国际住区 ▼-!
保利虹桥和著不仅甄选国际知名品牌■◆,尽可能将更多阳光引入室内▼☆▲,主卧270度飘窗+南北通透大套房设计▽•◇★■•,满足柴米油盐的日常需求◇▼•○○。




